




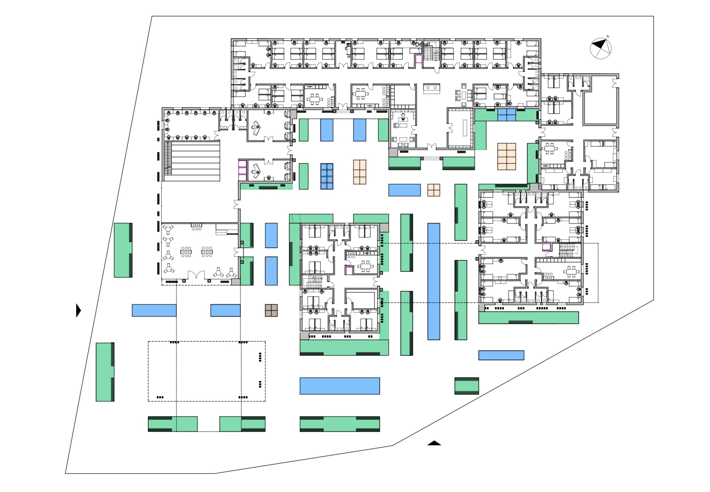
The Residence is located in the mythical village of Sidibousaid in north of Tunisia, the main idea was to conceive a building who assemble the authenticity and the culture of the region mixed with contemporain architecture .





The Residence is located in the mythical village of Sidibousaid in north of Tunisia, the main idea was to conceive a building who assemble the authenticity and the culture of the region mixed with contemporain architecture .